Fire Station

Fire_Station_Front.jpg

The third phase of the Community Civic Campus will include a new replacement Fire Station that will be designed as part of this process; however, it will be built as a future phase when the Municipal Services Building (MSB) site is developed. Timing of this is to be determined. Project is yet to be fully funded.

The new Fire Station will be approximately 8,000 square feet, a significant increase over the current size, and provide a modern and safe facility in a rapidly growing area of the City. The new facility will provide increased flexibility, space for three apparatus bays and ancillary support for fire trucks and emergency vehicles. The design also allows for an increase in diversity for firefighters and provides modern living, dining, and sleeping facilities for male and female firefighters. 

Fire Station Updates

Fire Station Plan: Feb. 2019

slide_11.jpg

The one-story station will include three extended apparatus bays, bay support spaces, station alerting, training areas, sleeping rooms, restrooms, dining, and living areas. ThisPhase Three of the Civic Campus project has been designed but will not be constructed. Timing of construction is still to be determined.Project is yet to be fully funded.

High Resolution Image(PDF, 1MB)

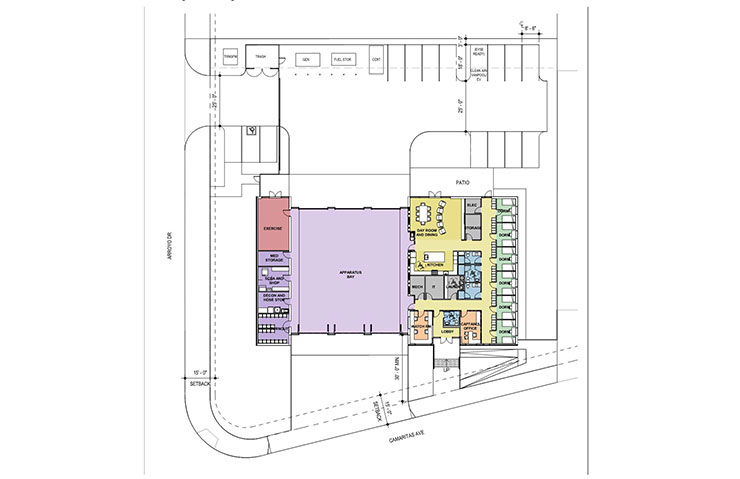
Fire Station Site: Feb. 2019

slide_10.jpg

Although not within the Community Campus Center site, the new Fire Station, located at the corner of Arroyo Drive and Camaritas Avenue, is an essential component of the project. This third phase of Civic Campus project has been designed but will not be constructed. Timing of construction is still to be determined. Project is yet to be fully funded.  

This 8,800 square foot facility will provide South San Francisco with a new and modern Fire Station to serve the surrounding area. The building is one-story tall and is intended to complement the architectural design of the Library and Parks & Recreation building, and the Police Facility. The site will include parking for about 14 secure spaces.

Pending appropriate funding, this portion of the project is expected to cost about $15 million (in current dollars).

High Resolution Image(PDF, 6MB)